Photos Central Stamford Townhouse With Parking
Stamford - 2 Queens Walk
Central Stamford Townhouse With Parking, a property with a garden, is situated in Stamford, 48 km from Leicester Railway Station, 49 km from Belgrave Road, as well as 49 km from University of Leicester. This property offers access to a patio, free private parking and free WiFi. The accommodation features private check-in and check-out and bicycle parking for guests.
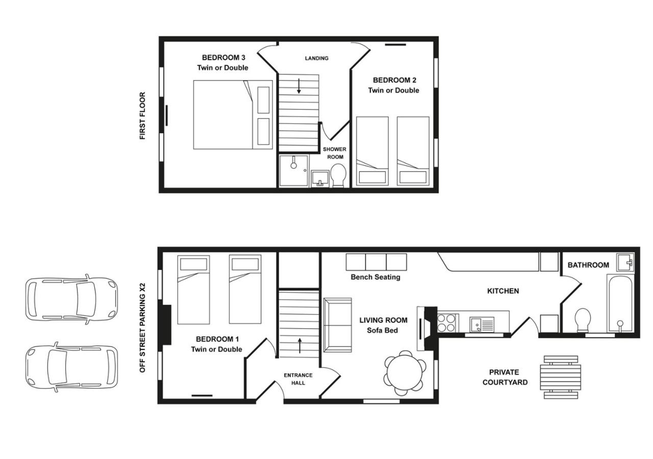
The holiday home features 3 bedrooms, 2 bathrooms, bed linen, towels, a flat-screen TV with streaming services, a dining area, a fully equipped kitchen, and a terrace withcourtyard views. Guests can enjoy a meal on an outdoor dining area while overlooking the quiet street views. This holiday home is allergy-free and non-smoking.
De Montfort University is 50 km from the holiday home, while Burghley House is 3.4 km from the property. East Midlands Airport is 70 km away.
The hotel day starts from hour 16:00 and ends at 11:00.
This property will not accommodate hen, stag or similar parties.
Please inform in advance of your expected arrival time. You can use the Special Requests box when booking, or contact the property directly with the contact details provided in your confirmation.
Three-Bedroom House. Boasting a private entrance, this holiday home features 1 living room, 3 separate bedrooms and 2 bathrooms with a bath and a shower. Meals can be prepared in the kitchen, which has a stovetop, a refrigerator, a dishwasher and kitchenware. Featuring a terrace with ancourtyard view, this holiday home also features a washing machine and a flat-screen TV with streaming services. The unit has 6 beds.
Additional information about the offer Great Britain - Stamford - Central Stamford Townhouse With Parking, opinions of holidaymakers as well as available dates can be found on the website our partner.
Book now
Offer from our partner: Booking.com BG.6845810









