Central and Quirky Northern Quarter Flat, Manchester
Manchester
own transport
9.4/10
2026-02-10->2026-02-11
More informationPhotos Central and Quirky Northern Quarter Flat, Manchester
Manchester - Apartment 1 Marlee court - 62 Tib Street, Nothern Quarter
Offering free WiFi and city views, Central and Quirky Northern Quarter Flat, Manchester is an accommodationin Manchester, just 800 metres from Chethams Library and less than 1 km from Piccadilly Railway Station. The property is situated 800 metres from Manchester Art Gallery, 1 km from Albert Square and 1 km from Manchester Central Library. The property is 700 metres from the city centre and 300 metres from Greater Manchester Police Museum.
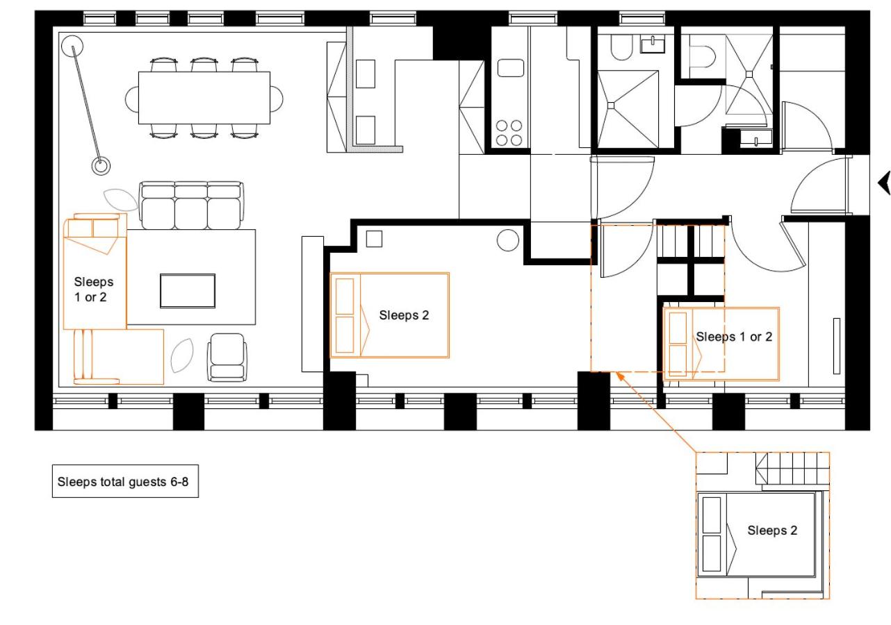
The spacious apartment features 2 bedrooms, a flat-screen TV with streaming services, a fully equipped kitchen with a dishwasher and an oven, a washing machine, and 2 bathrooms with a walk-in shower. Towels and bed linen are featured in the apartment. For added privacy, the accommodation features a private entrance.
Popular points of interest near the apartment include AO Arena, Canal Street and Royal Exchange Theatre. Manchester Airport is 15 km away.
The hotel day starts from hour 15:00 and ends at 11:00.
This property will not accommodate hen, stag or similar parties.
Please inform in advance of your expected arrival time. You can use the Special Requests box when booking, or contact the property directly with the contact details provided in your confirmation.
Guests under the age of 18 can only check in with a parent or official guardian.
Apartment. This spacious apartment comprises 1 living room, 2 separate bedrooms and 2 bathrooms with a walk-in shower and free toiletries. Meals can be prepared in the well-fitted kitchen, which comes with a stovetop, a refrigerator, a dishwasher and kitchenware. The apartment provides a flat-screen TV with streaming services, a washing machine, a private entrance, a tea and coffee maker as well as city views. The unit offers 4 beds.
Additional information about the offer Great Britain - Manchester - Central and Quirky Northern Quarter Flat, Manchester, opinions of holidaymakers as well as available dates can be found on the website our partner.
Book now
Offer from our partner: Booking.com BG.6399710









